
Garage / parking
Jardin
Piscine
Terrasse
Sous décennale - Elégance - Sans vis à vis - chauffage au sol -
Maison contemporaine 2023 avec patio, sous décennale, aux portes de La Rochelle !
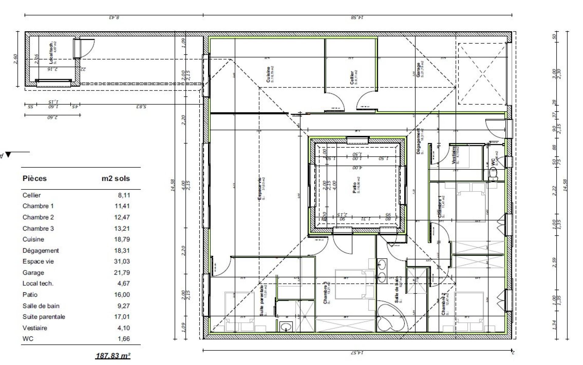
Aux portes de La Rochelle, à Dompierre-sur-Mer, village prisé et particulièrement dynamique, cette maison contemporaine d’exception de plain-pied, construite en 2023 et bénéficiant de l’assurance décennale constructeur, offre un niveau de prestations rare et une qualité de vie remarquable, portée par un chauffage au sol, des matériaux soigneusement sélectionnés et à une décoration contemporaine aux finitions raffinées. Développant une surface habitable de 146 m² sur un terrain de 423 m², la maison se distingue par son architecture élégante et parfaitement pensée, organisée autour d’un patio central. Véritable signature du lieu, ce patio crée une atmosphère intime et apaisante, baignant l’ensemble des espaces de lumière naturelle et offrant un cadre propice à la détente, au cœur même de la maison. L’entrée s’ouvre sur un vaste couloir desservant un grand vestiaire aménagé, conçu pour allier esthétisme et fonctionnalité. La pièce de vie, généreuse et lumineuse, bénéficie de larges baies vitrées qui prolongent naturellement l’espace vers l’extérieur. La cuisine indépendante, entièrement aménagée et équipée, séduit par la qualité de ses équipements et son agencement fluide. Elle est complétée par un cellier spacieux, offrant un espace de rangement discret et parfaitement intégré. L’espace nuit propose une suite parentale élégante avec dressing, salle d’eau privative et WC, pensée comme un véritable espace de bien-être. Trois autres chambres viennent compléter l’ensemble, ainsi qu’une salle de bain aux volumes généreux, à l’ambiance chaleureuse et enveloppante, comprenant une grande douche à l’italienne et une baignoire aux lignes soignées. À l’extérieur, la maison se prolonge par un espace dédié à la détente et à la convivialité, avec une piscine chauffée harmonieusement intégrée. La terrasse semi-couverte permet de profiter pleinement des lieux en toute saison, offrant un cadre idéal pour des moments privilégiés en famille ou entre amis. Un local technique complète l’aménagement extérieur. Ce bien se distingue par son caractère clé en main : vous n'avez qu'à déposer vos valises !














Classe énergie et classe climat
Conseillère indépendante en immobilier sur :
LA ROCHELLE (17000) et alentours
EI - Agent commercial - 935 040 261 RSAC La Rochelle