
Sans travaux, Hyper centre sans passage de voiture, Apt locatif 600 euros mensuel.
Magnifique maison coup de coeur
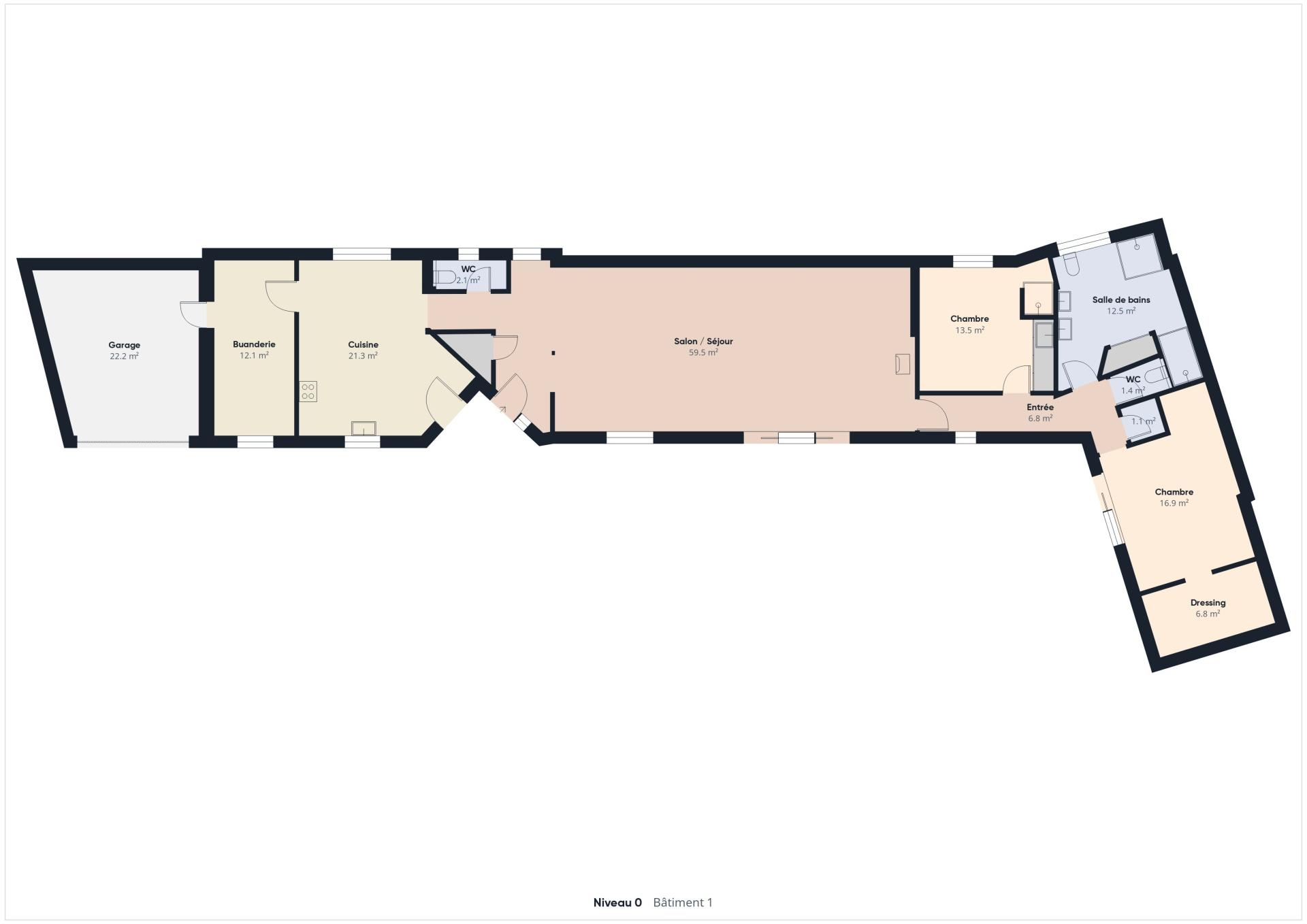
Venez découvrir cette magnifique maison rénovée avec goût et savoir-faire en 2014. Idéalement située au cœur de Dompierre-sur-Mer, toutes les commodités sont à 5 minutes à pied. Vous entrez ? Un petit dégagement vous mène à gauche à la cuisine entièrement équipée, puis à un cellier et enfin au garage avec son galetas ! Sur votre droite, un salon/salle à manger de 50 m² avec son poêle à bois vous accueille. Nous entrons ensuite dans la partie nuit : une première chambre avec douche et lavabo, une grande salle de bains avec sauna et douche à l'italienne, des toilettes et enfin la grande chambre et son dressing. La troisième chambre peut être considérée comme une chambre d'amis ou un studio puisqu'elle est entièrement équipée pour la location (entrée indépendante,louée 600 euros par mois). Et comme nous avons encore besoin d'espace, un deuxième garage attenant complète ce bijou. Les extérieurs s'offrent à vous dans un jardin sec très bien entretenu. Des panneaux solaires assurent l'autonomie de ce bien et l'aspirateur central est réparti dans toutes les pièces














Classe énergie et classe climat
Conseiller indépendant en immobilier sur :
LA JARRIE (17220) et alentours
EI - Agent commercial - 821 861 440 RSAC La Rochelle