
Garage / parking
Piscine
Terrasse
Emplacement, piscine, garage, potentiel d'aménagement (cave et combles)
Barrière St Genès Bordeaux/Talence- maison de 200m2 avec 3 chambres, jardin, piscine, garage
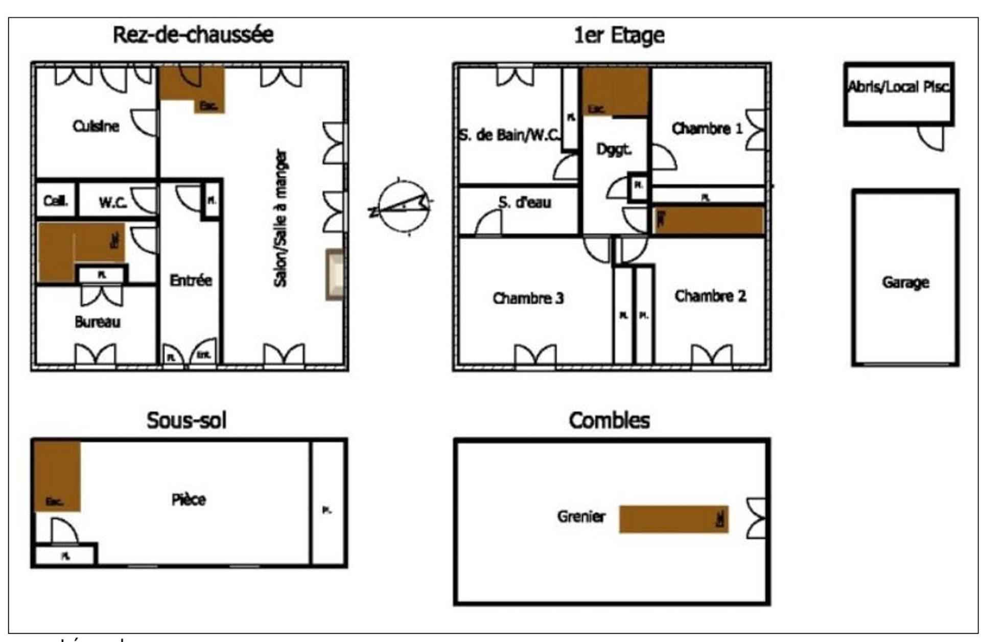
Située à Talence, en bordure de Bordeaux, à 5 minutes à pied de la barrière St Genès, cette maison non mitoyenne d'environ 200 m² se trouve dans une rue calme, à proximité des bus et du Tram B. La maison bénéficie d'une triple exposition idéale Sud, Est, et Ouest et sa façade en pierre a été conservée lors d'une reconstruction totale en 1989. Le charme de cette maison est renforcé par un beau jardin d'environ 280m2 agrémenté d'une piscine et d'une vaste terrasse sur deux côtés. La maison se compose au RDC d'une entrée, un bureau, un grand salon ouvert sur le jardin, une cuisine, et des WC. Le premier étage abrite un palier, 3 grandes chambres avec placards, une salle d'eau, une salle de bain avec WC. Une cave de 40m2 et des combles de 50m2 au sol offrent un potentiel supplémentaire. Ce bien dispose d'un garage et propose un aménagement fonctionnel sur 3 niveaux, idéal pour une famille.












Classe énergie et classe climat
Conseiller indépendant en immobilier sur :
BORDEAUX (33000) et alentours
EI - Agent commercial - 525 174 132 RSAC BORDEAUX