
Garage / parking
Swimming Pool
Terrace
Villa récente, au calme, bien exposée et sans vis-à-vis, avec piscine et pool-house
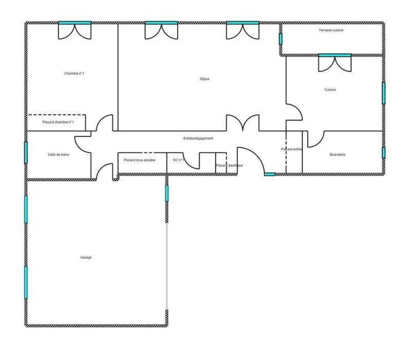
Quartier recherché de La Sine, au calme, bien exposée et sans vis-à-vis, belle villa récente 4/5P d'environ 138 m² habitables sur un terrain plat et paysagé d'environ 1500 m² avec piscine à débordement et pool-house avec cuisine d'été, barbecue et four à pizza. Lumineux séjour/cheminée avec insert, cuisine indépendante équipée, cellier/buanderie, belle chambre avec placard, salle de bains et wc indépendant. A l'étage, 2 chambres avec placard donnant sur terrasse avec vue panoramique dégagée, salle d'eau, wc indépendant et combles aménagés pouvant servir de chambre supplémentaire, bureau ou salle de jeux. Sous le pool-house, espace douche avec toilettes et belle cave à vin. Grand garage d'environ 34 m² et stationnement dans la cour pavée pour plusieurs véhicules. Forage avec puits relié à l'arrosage automatique et maison reliée au tout-à-l'égout. Possibilité d'extension de la maison accordée pour 60 m².


















Energy Rating and Climate Class
Independent Property Consultant in:
VENCE (06140) and surrounding area
EI - Agent commercial - 500 781 745 RSAC GRASSE