
House - Villa

Coup de cœur pour cette maison en pierre rénovée sur 3 étages, en cour d'achèvement proche du centre de Locoal Mendon direction Belz.
Superbe maison en pierre qui sera entièrement rénovée.
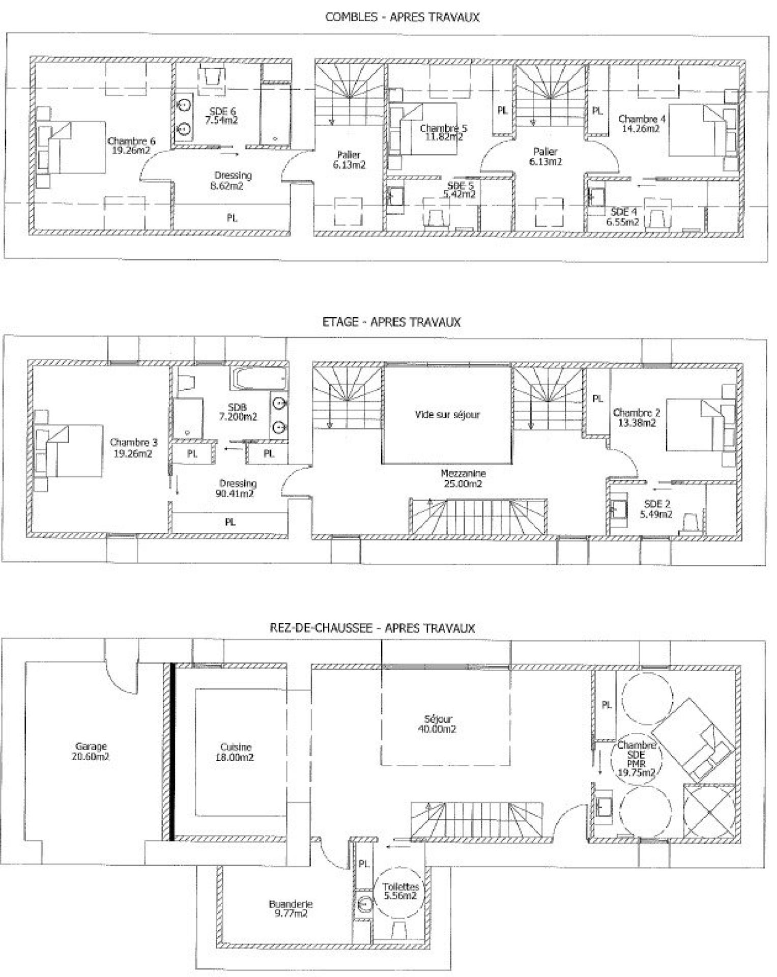
Description du bien : <br/>Maison en pierre sur trois étages refaite entièrement à neuve. <br/>260 M2 habitable <br/>Cuisine équipée (à choisir), 5 belles chambres dont 2 avec SDB et 3 avec SDE privative.<br/>1 garage et 2 dépendances le tout sur un terrain entièrement clos de plus 650 m².<br/><br/>Conditions particulières de la vente : achèvement des travaux.








Independent Property Consultant in:
PLUVIGNER (56330) and surrounding area
EI - Agent commercial - 890 769 896 RSAC LORIENT