
Maison - Villa

T4 Duplex Côte Pavée votre plus beau cadre de vie…
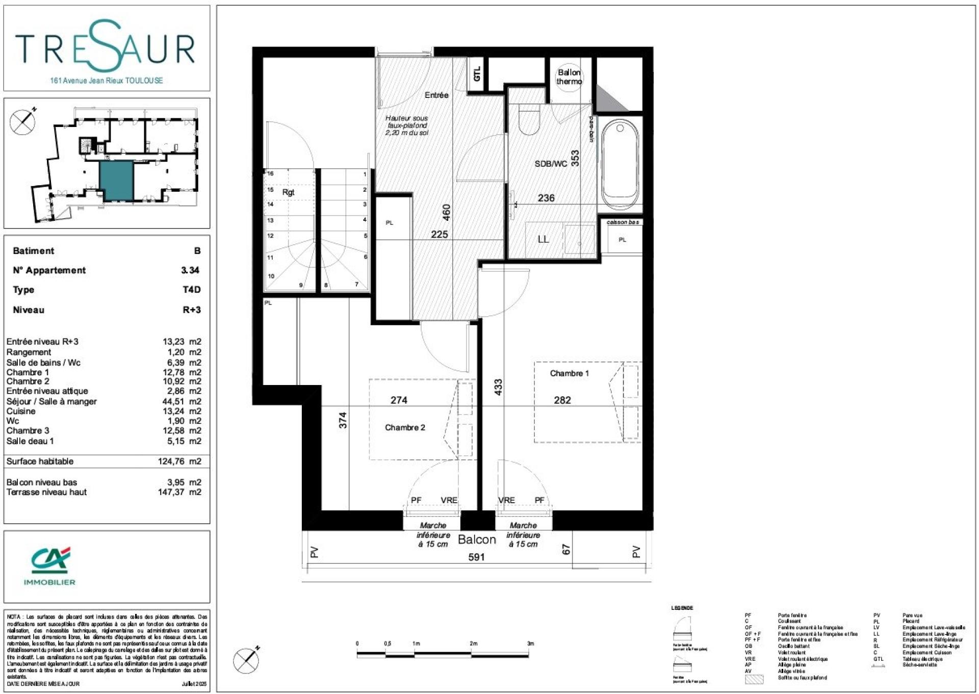
Au 161 rue Jean Rieux, se dévoile la résidence Tresaur. Ce petit bijou d’architecture contemporaine blottie dans un sublime écrin naturel abrite 23 logements du 2 au grand 5 pièces, confortables et bien pensés. Une écriture architecturale magistrale! Une résidence bien dans son temps. Conçue dans une démarche de développement durable et de qualité environnementale, à travers notamment l’utilisation de matériaux locaux, Tresaur propose des appartements à double orientation permettant une ventilation naturelle. A disposition des résidents également, 34 places de stationnement en sous-sol, une place équipée d’un véhicule électrique disponible en autopartage ainsi que 2 locaux à vélos en rez-de-chaussée.




Conseiller indépendant en immobilier sur :
SEYSSES (31600) et alentours
EI - Agent commercial - 992 630 897 RSAC TOULOUSE