
Climatisation
Jardin
Terrasse
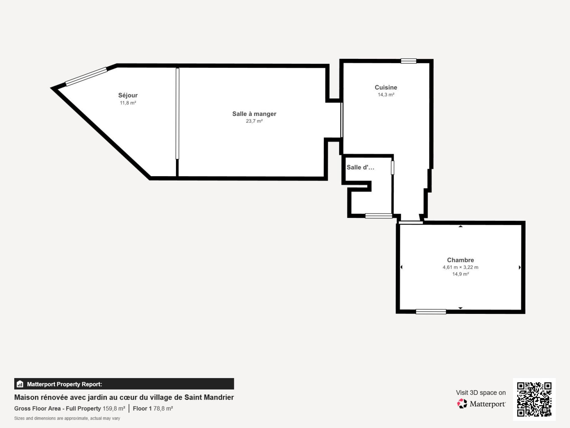
Maison rénovée 2022, 141m² climatisée, jardin plat piscinable 600m², terrasse, 4 chambres, bureau, cœur de village, garage en option
Maison de charme pour des étés en famille à Saint-Mandrier
Au cœur de la presqu’île de Saint-Mandrier, cette maison profite d’un emplacement rare, à deux pas du port, des plages, des commerces et des écoles. Ici, tout se fait à pied et la vie s’écoule au rythme de la mer et des marchés du village. Entourée d’un jardin plat et arboré de 600 m², cette maison invite naturellement aux vacances : repas sous la pergola, rires d’enfants dans le jardin, farniente à l’ombre des arbres… Le terrain est piscinable et un garage fermé, à proximité, est proposé en option. Rénovée en 2022 avec des prestations actuelles, elle offre 141 m² de confort : vaste séjour baigné de lumière, cuisine équipée, quatre chambres climatisées dont deux avec accès indépendant, bureau et deux salles d’eau. Une maison clé en main, idéale pour des moments heureux en famille, été comme hiver. VISITE VIRTUELLE 3D MATTERPORT SUR DEMANDE.















Classe énergie et classe climat
Conseiller indépendant en immobilier sur :
LA SEYNE SUR MER (83500) et alentours
EI - Agent commercial - 843 653 916 RSAC TOULON