
Maison - Villa

Garage / parking
Terrasse
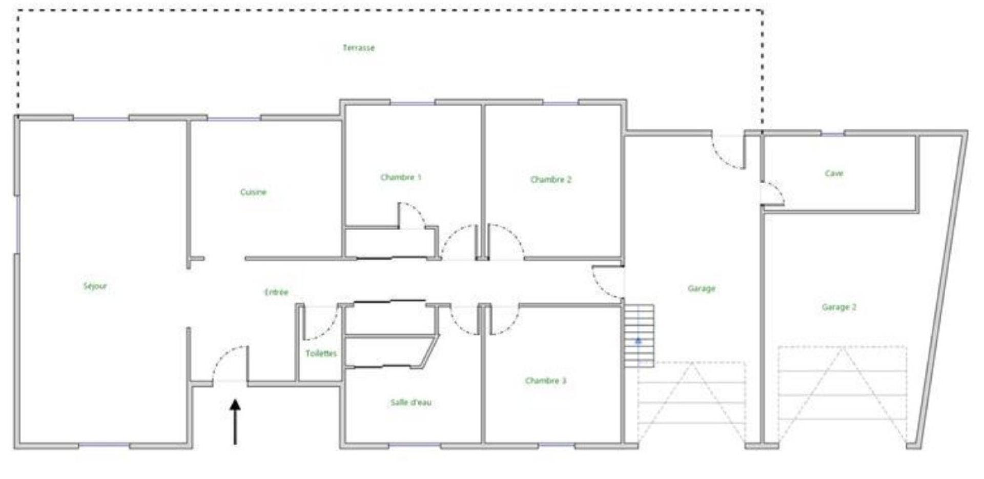
Jolie MAISON + LOCAL sur Saffré de 200 m² !!
NOUVEAUTÉ !! Superbe maison lumineuse avec double garage de 200 m² à découvrir ! Gros plus, dispose d'un bâtiment de 300 m² laissant de multiples possibilités, actuellement en location, le tout sur un terrain magnifique et très bien entretenu de 3 000 m² offrant calme et sérénité. Terrasse de 130 m² avec tonnelle climatisée, barbecue, massif de jardin arboré, abri de jardin en dur. À proximité du bourg de Saffré, cadre de vie paisible, idéal pour les amoureux de la nature, tout en restant proche des commodités essentielles. Nort Sur Erdre, commune voisine à 6 kms avec de nombreux commerces, restaurants, écoles et collèges, lycées.. Maison moderne familiale alliant confort et fonctionnalité. Rez-de-chaussée : cuisine, salon/salle à manger, 3 chambres, salle d'eau, toilette. Étage :1 bureau, 2 pièces qui peuvent servir de chambre., ainsi que 2 autres grandes pièces qui peuvent être aménagées à votre gout. Maison offrant un potentiel exceptionnel. Venez vite la visiter !!!



















Classe énergie et classe climat
Conseiller indépendant en immobilier sur :
NOZAY (44170) et alentours
EI - Agent commercial - 883 495 665 RSAC Nantes