
Ascenseur
appart T3 traversant de belle qualité, moderne, bien isolé, bien agencé, tout confort, quartier recherché, parking (en sus)
appartement moderne, très bon standing, quartier prisé
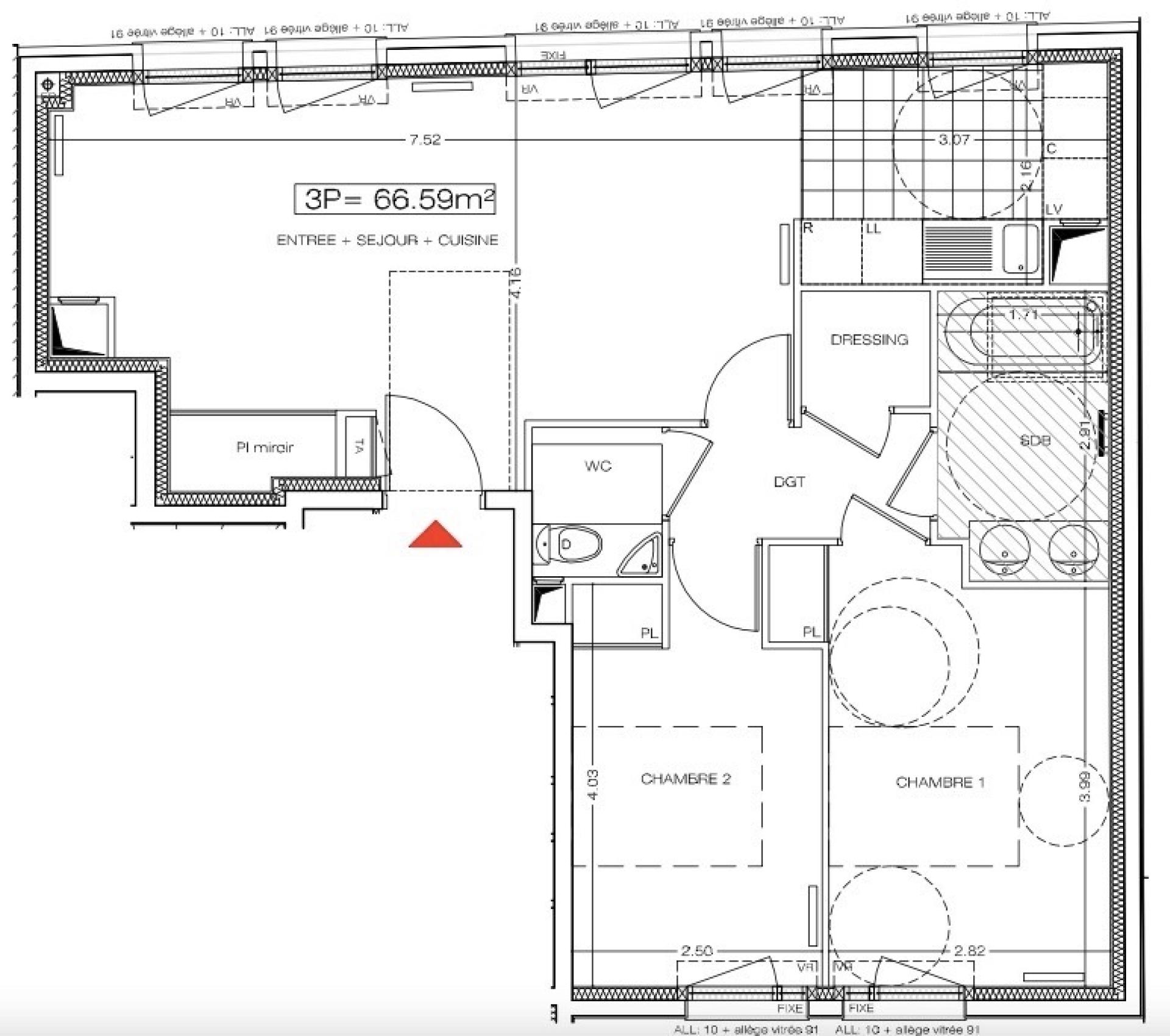
Quartier Jules Joffrin – Lamarck, Paris 18ème Bel appartement moderne de 67 m², situé au 2ème étage d’une résidence récente (2020) de très bon standing, rare dans ce quartier. Traversant et lumineux, avec exposition Est / Ouest, il comprend un séjour spacieux avec cuisine ouverte, deux chambres au calme côté jardin dont une avec bureau sur mesure, un dressing, une salle de bains avec baignoire et double vasque, ainsi qu’un WC séparé. Une cave de 5 m² complète le bien. Une place de parking avec borne de recharge électrique, directement accessible par ascenseur, est proposée en supplément. La résidence dispose également d’un local à poussettes et d’un grand local à vélos. À proximité immédiate des commerces, écoles et transports, cet appartement fonctionnel et lumineux offre un cadre de vie confortable au cœur d’un secteur très recherché du 18 ème arrondissement.









Classe énergie et classe climat
Conseiller indépendant en immobilier sur :
BOULOGNE BILLANCOURT (92100) et alentours
EI - Agent commercial - 794 149 567 RSAC Nanterre