
Maison - Villa

Hôtel Particulier d’Exception Jardin Toit-Terrasse
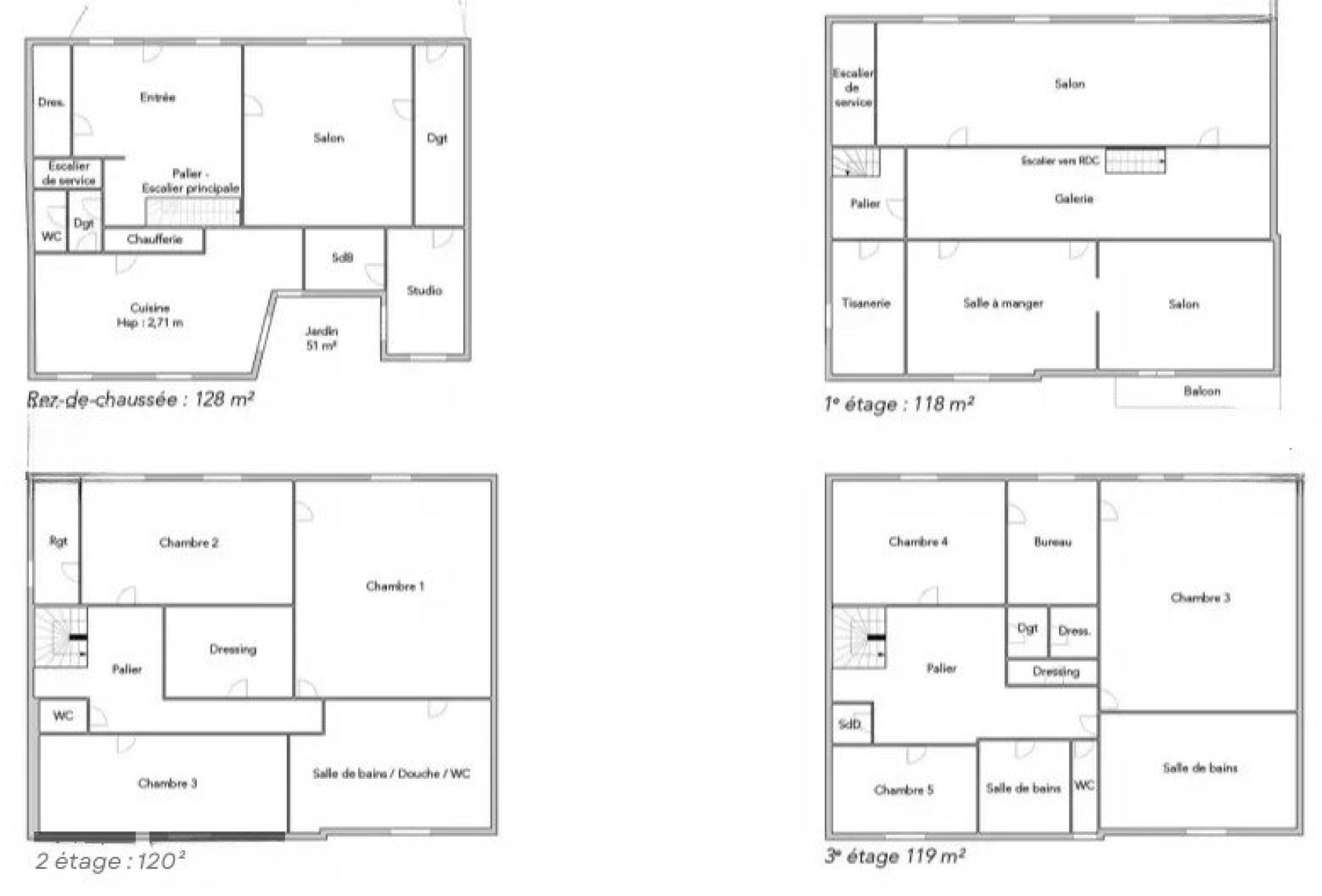
Situé au cœur d’un hameau privé et sécurisé, à l’abri des regards et au calme absolu, cet élégant hôtel particulier édifié en 1910 d'une surface de 485 m² sur quatre niveaux séduit par son caractère, ses volumes et son environnement verdoyant. La propriété bénéficie de 126 m² de jardins arborés ainsi que d’un toit-terrasse de 124 m² sans vis-à-vis. Rez-de-jardin : galerie d’entrée, grande cuisine familiale et dinatoire ouverte sur le jardin, salle de billard, buanderie et studio de service, escalier en pierre de taille. Premier étage pièces de réception : grand salon avec cheminée, petit salon, salle à manger avec office, boudoir aux plafonds peints. Deuxième étage : suite parentale avec dressing et salle de bains, deux bureaux ou chambres. Troisième étage : quatre chambres, bureau, deux dressings, salle de bains, salle d’eau, atelier et accès au toit-terrasse. Possibilité d’installation d’un ascenseur. Deux places de stationnement dans la voie privée.











Classe énergie et classe climat
Conseiller indépendant en immobilier sur :
PARIS 16E ARRONDISSEMENT (75016) et alentours
EI - Agent commercial - 881 189 039 RSAC PARIS