
Maison - Villa

Ascenseur
Garage / parking
Terrasse
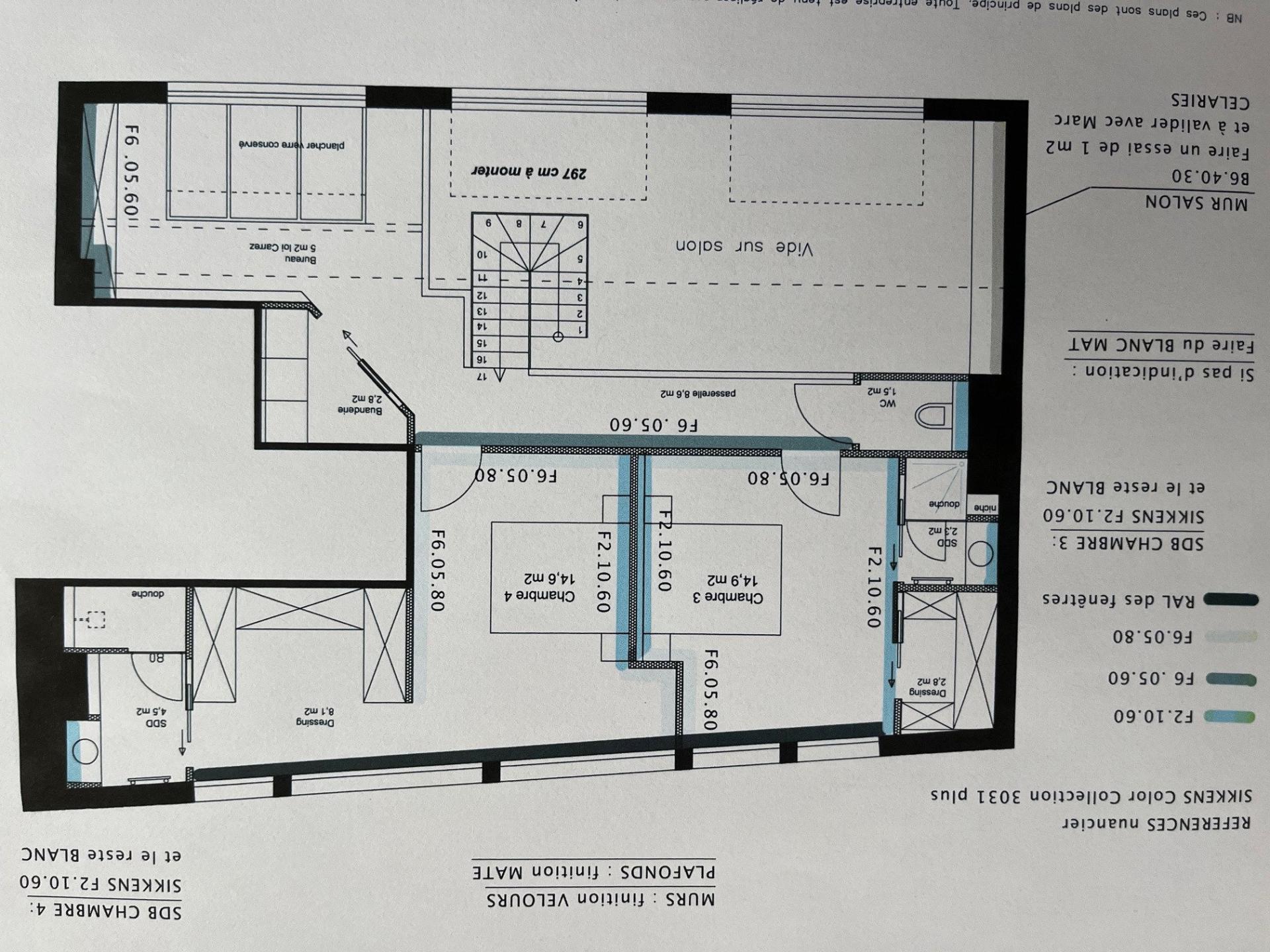
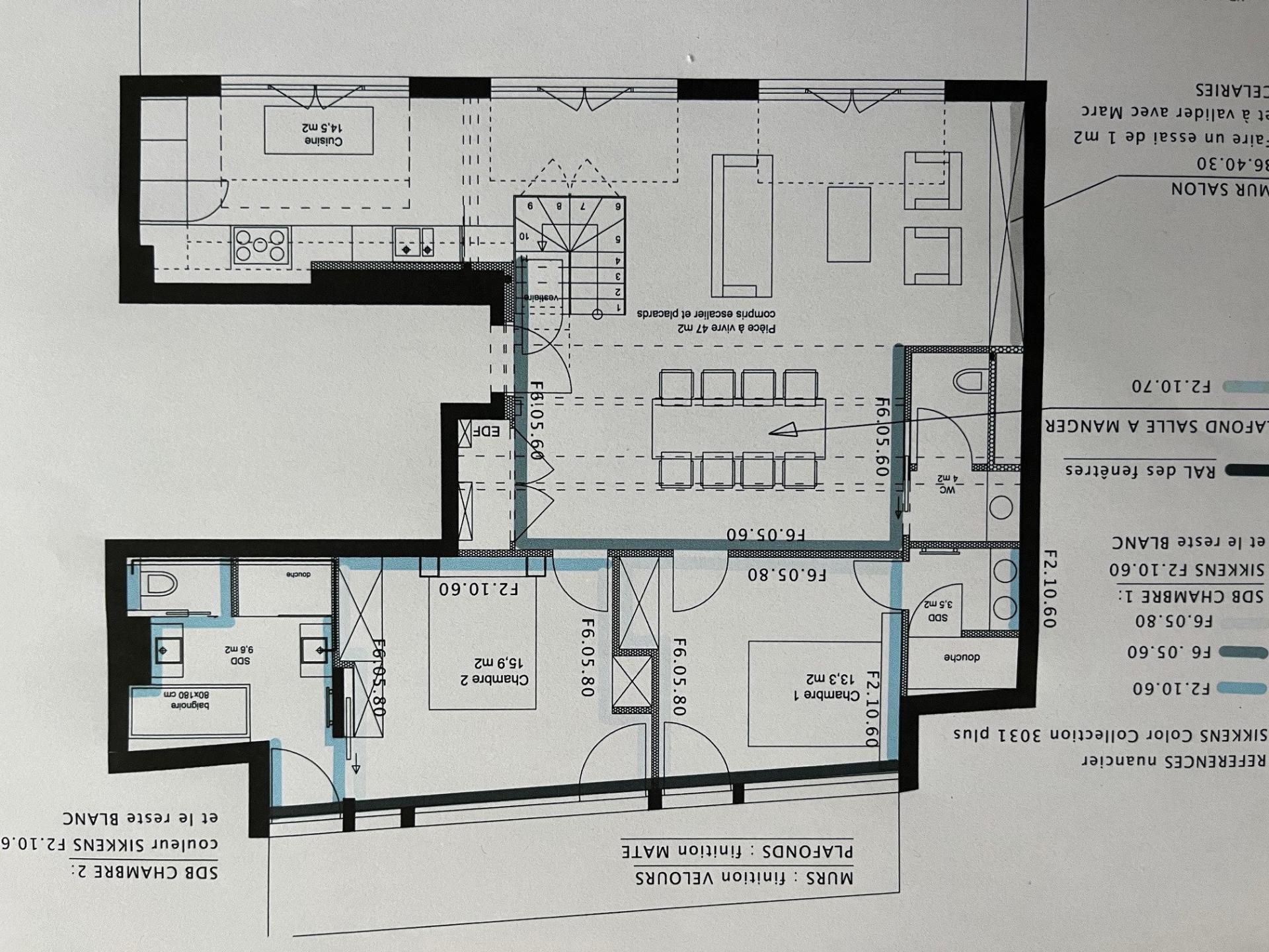
Magnifique duplex d'exception, s'étendant sur 214m², quatre spacieuses suites parentales, vue dégagée.
Un Bien d'exception, magnifique duplex s'étendant sur 214m², quatre spacieuses suites parentales.
Prestation haut de gamme. Découvrez ce magnifique duplex d'exception ( style loft), s'étendant sur170m²,( 174 m² au sol) terrasse de plus 40m², niché aux deux derniers étages avec ascenseur, cinquième et sixième étage d'un bel immeuble construit en 2011, conformément aux normes de construction récentes, garantissant un excellent niveau d'isolation, DPE B . En parfait état général, cet espace de vie unique se distingue par son séjour, salle à manger cathédrale d'environ 60m² , offrant une hauteur sous plafond impressionnante de 6 m, baignant l’intérieur de lumière naturellement et créant une atmosphère chaleureuse et accueillante. Le duplex dispose de quatre suites parentales élégamment aménagées, chacune dotée d'un accès direct aux terrasses ensoleillées, idéalement exposées sud-ouest. Les prestations de haut de gamme se retrouvent dans chaque détail de cet appartement raffiné, alliant confort et luxe. Que ce soit dans le choix des matériaux, les finitions soignées ou les équipements modernes, tout a été pensé pour offrir une qualité de vie exceptionnelle. En annexe de ce bien d’exception, une cave de 9m², et la possibilité d'acquérir plusieurs emplacements de parkings/box en sus. Une opportunité rare à ne pas manquer pour ceux en quête d'un bien d'exception.



















Classe énergie et classe climat
Conseiller indépendant en immobilier sur :
COURBEVOIE (92400) et alentours
EI - Agent commercial - 791 138 852 RSAC Nanterre