
Balcon
Climatisation
Garage / parking
Terrasse
DPE A / Grande suite Parentale avec Sauna
Appartement de standing / quartier historique / petit parc
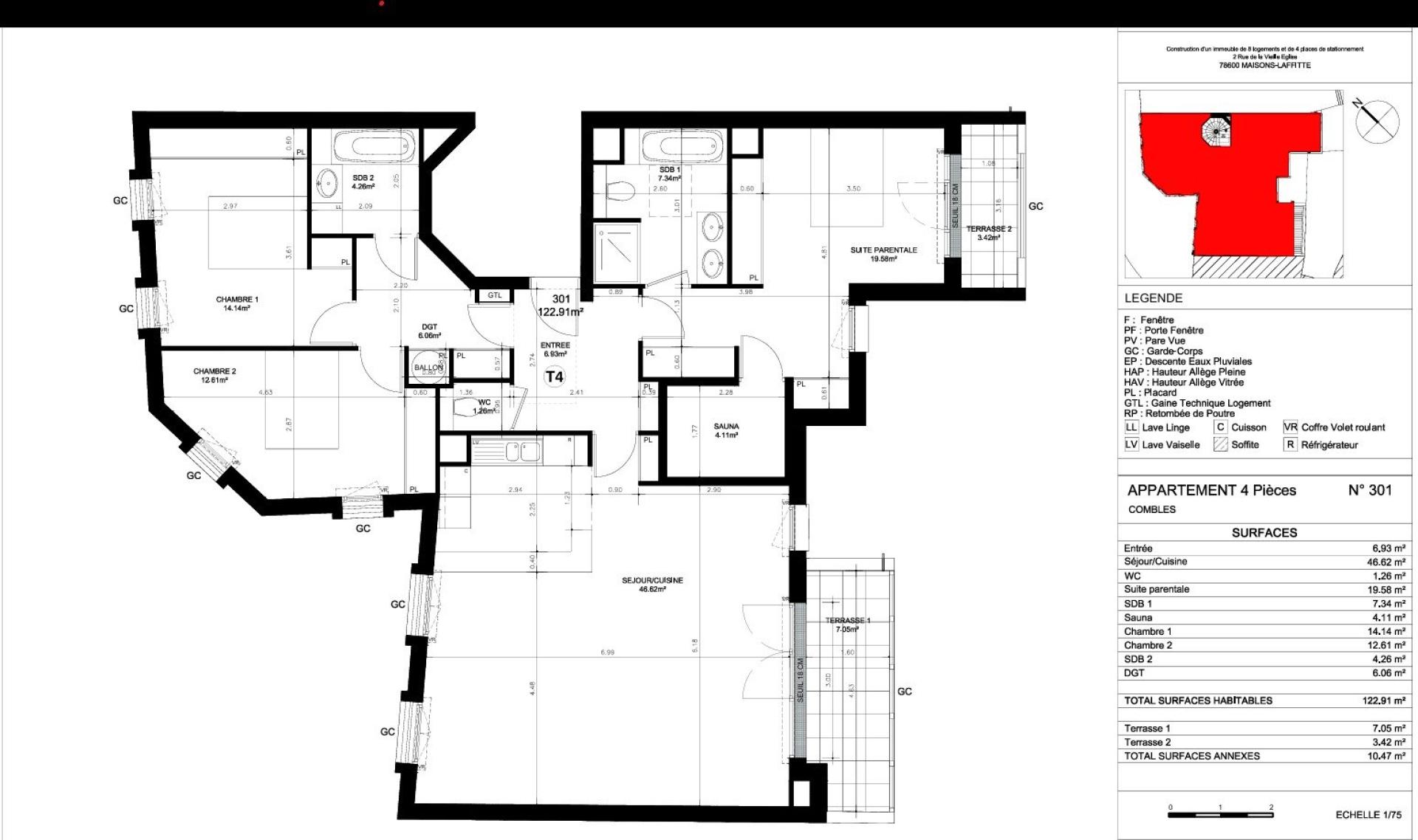
Situé à Maisons-Laffitte (78600), cet appartement offre un cadre de vie privilégié a proximité du Château de Maisons-Laffitte. A moins de 10min a pied : Tous commerces, écoles, lycée privé, collège, crèche, ainsi que les transports en commun par bus et train (RER A / ligne L : La Défense / Paris St Lazare ) À l'intérieur, ce bien climatisé de 121m² env. se compose de 4 pièces : 1 salon cathédrale de 46m² avec cuisine ouverte,1 suite parentale avec sauna, 2 belles chambres, 2 toilettes et 2 salles de bain pour le confort de ses résidents. L'exposition est ouest assure une luminosité naturelle tout au long de la journée. À l'extérieur, cet appartement haut de gamme dans un immeuble de standing dispose d'une terrasse et d'un balcon offrant des espaces extérieurs agréables. De plus, il bénéficie d'un garage pour stationner en toute sécurité. Les aménagements spécifiques comprennent un système de sas de sécurité avec interphone et digicode, ainsi que la connexion fibre.
























Classe énergie et classe climat
Conseiller indépendant en immobilier sur :
LE MESNIL LE ROI (78600) et alentours
EI - Agent commercial - 987 418 266 RSAC Versailles