
Ascenseur
Terrasse
Neuf, 2 places de parking, proche tram et commodités
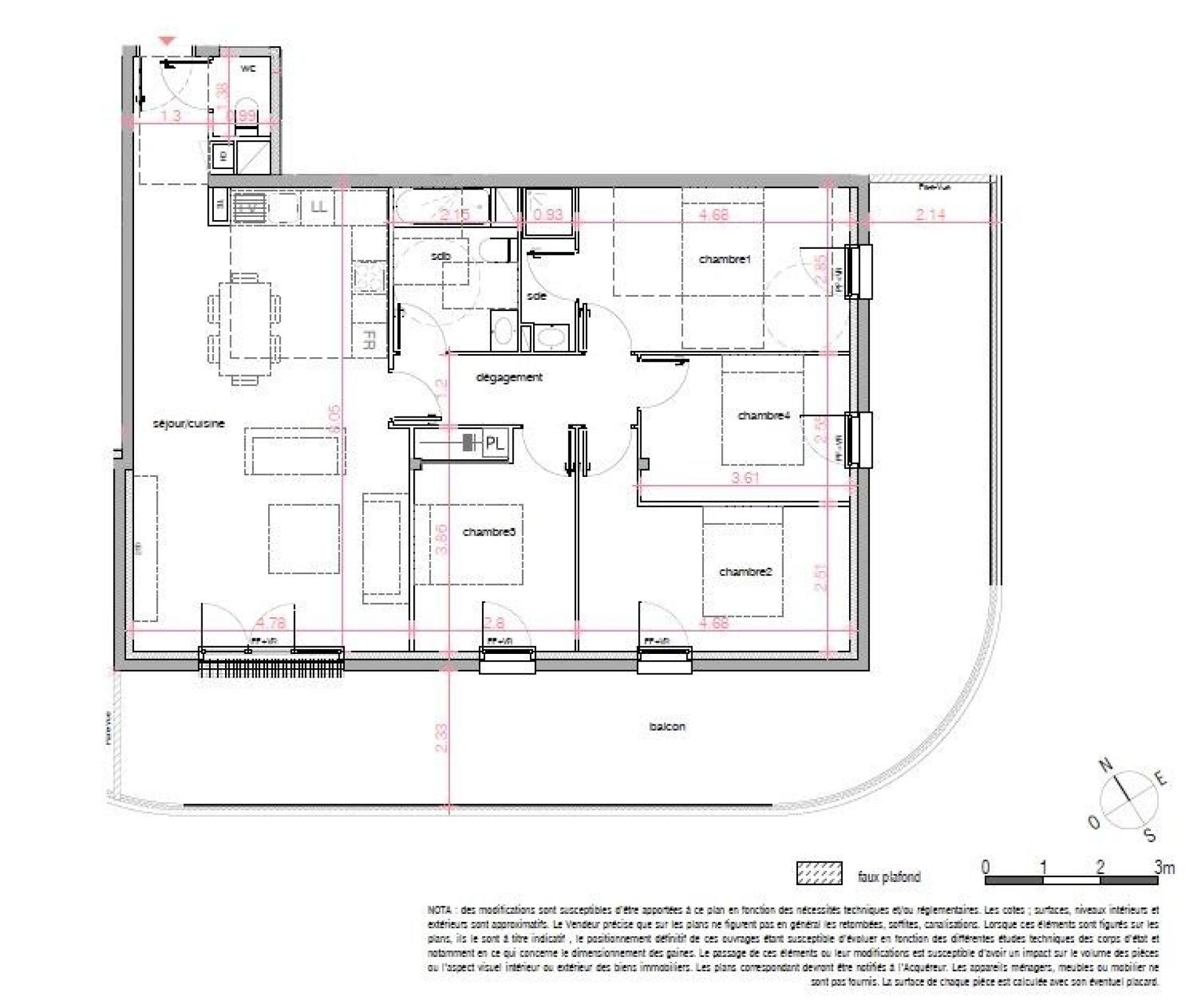
LE BOUSCAT Appartement T5 neuf avec terrasse 50 m2
LE BOUSCAT, emplacement recherché pour cet appartement neuf de 101 m2 proche de toutes les commodités : commerces, écoles, bus, tram D à 3 mn à pied, gare Ste Germaine à proximité ou vous serez à moins d'un quart d'heure de la gare Saint-Jean ou 10 mn de la gare de Pessac.... Au 2e étage avec ascenseur, cet appartement lumineux, dont toutes les pièces s'ouvrent sur une grande terrasse de plus de 50 m2, se compose d'une belle pièce de vie avec son espace cuisine à aménager, 4 chambres dont une parentale avec sa salle d'eau, trois autres chambres, une salle de bain et toilettes séparées. Cet appartement, sans vis à vis, exposé sud-ouest, dans une résidence de standing sécurisée, donne sur un jardin central arboré et bénéficie de 2 places de parking privé en R-1. Local vélo dans la résidence. Une opportunité rare sur le secteur où vous profiterez des frais de notaires gratuits.








Classe énergie et classe climat
Conseillère indépendante en immobilier sur :
BORDEAUX (33200) et alentours
EI - Agent commercial - 951 574 383 RSAC Bordeaux