
Magnifique maison 2023 neuve achevée !!!
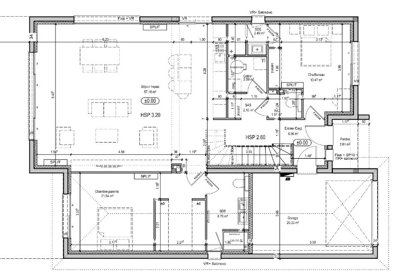
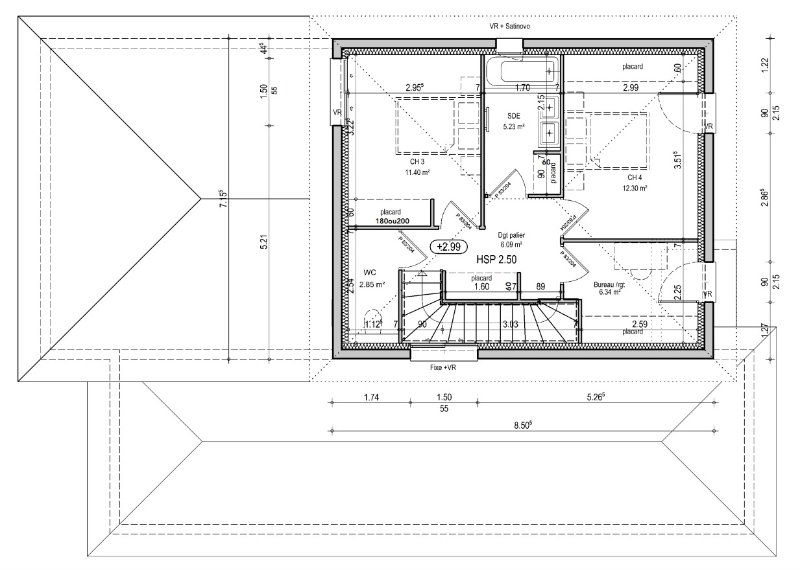
A Saucats, à proximité du centre et de ses commodités, venez découvrir cette magnifique maison neuve BBC achevée de 2023, au calme sur une jolie parcelle piscinable de plus de 943m2 avec garage carrelé et isolé de 20m2. Elle se compose au rez de chaussée d'une entrée, d'un grand séjour lumineux avec sa belle hauteur sous plafond. De celui-ci on accède à la terrasse carrelée et au jardin. On y retrouve également une cuisine avec cellier attenant, un wc séparé, une chambre et sa salle d'eau, une suite parentale avec sa salle d'eau, son wc et son grand dressing. Puis à l'étage deux chambres, une salle de bain avec douche et baignoire, un wc séparé et un bureau. De belles prestations de qualité vous attendent, alors prêt pour une visite ?











Conseiller indépendant en immobilier sur :
VILLENAVE D ORNON (33140) et alentours
EI - Agent commercial - 834 965 659 RSAC BORDEAUX