
Maison - Villa

Cadre verdoyant sans vis-à-vis, 2 habitations distinctes, piscine chauffée, pool house, très grand garages et calme absolu.
Domaine d'exception arboré et clos avec 2 habitations sans vis-à-vis à 1 km de Ruffec
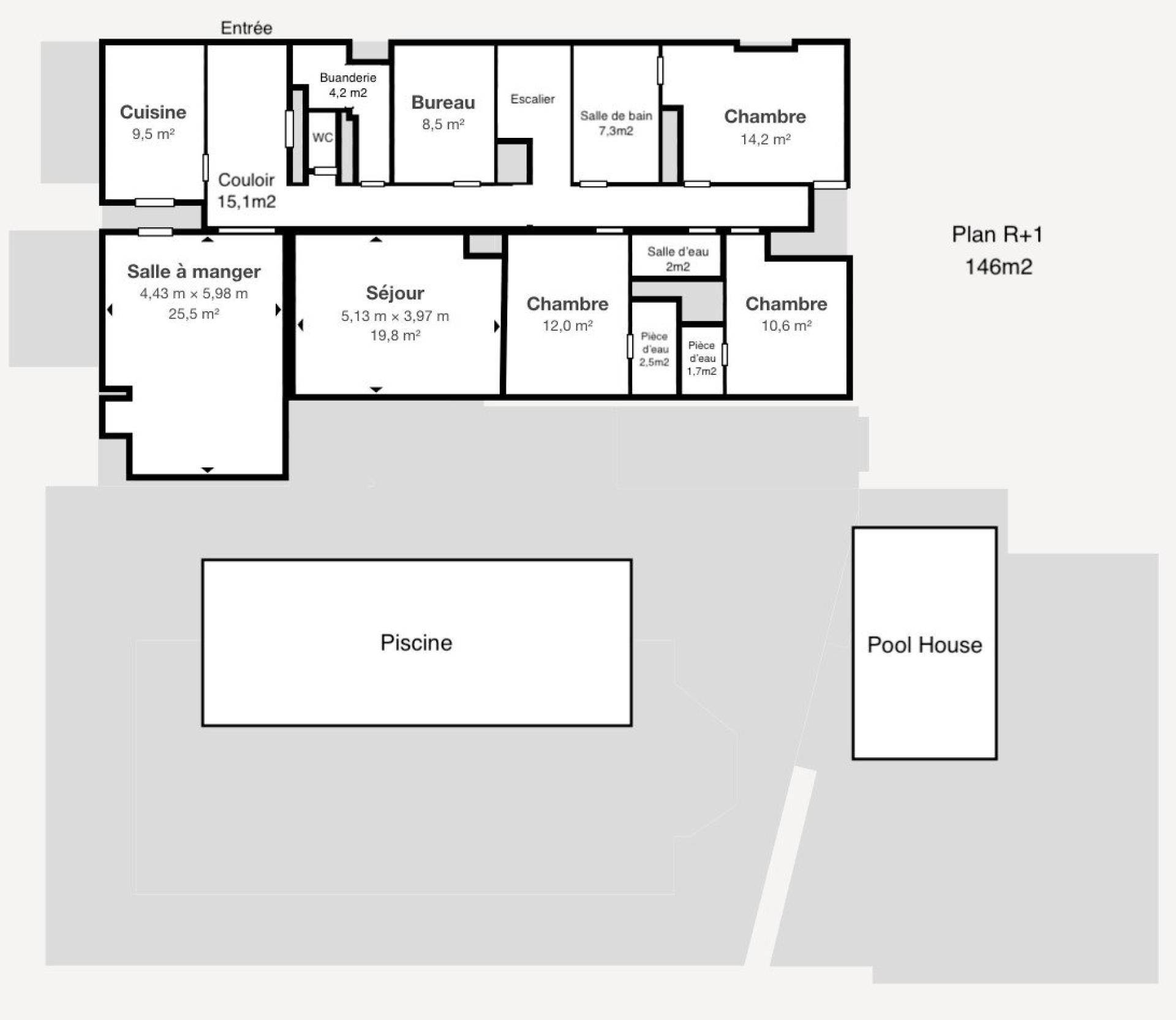
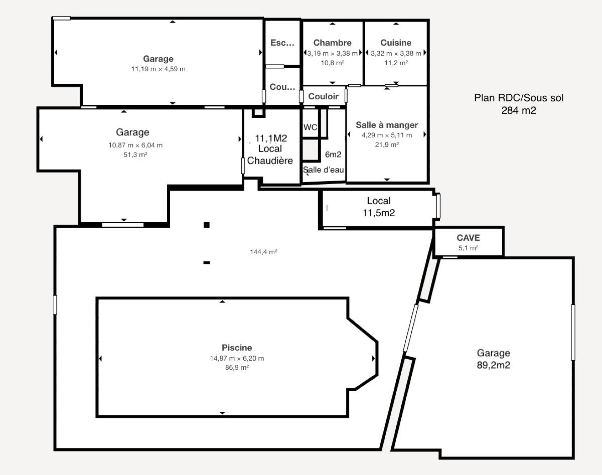
Visite virtuelle disponible ! Située à Condac (16700), cette propriété offre un cadre privilégié à seulement 1 km du centre ville de Ruffec. Proche des commodités, elle bénéficie d'un environnement paisible et verdoyant, idéal pour profiter de la tranquillité tout en restant à proximité des services. Avec une vue exceptionnelle, cette maison est un véritable havre de paix offrant un mode de vie à la fois pratique et reposant. Construite en 1972, cette maison de 266 m² sur un terrain de 24850 m² comprend 10 pièces réparties sur 2 niveaux avec 2 habitations distinctes. Composée de 2 cuisines, 3 salons/séjours, 4 chambres, 1 salle de bain, 2 salles d'eau, 2 WC, 1 buanderie et un très grand Pool House avec douche, WC et cuisine. Elle offre un espace de vie spacieux et fonctionnel, avec un très grand garage au sous-sol, une terrasse, un parc arboré clos sans vis à vis et une piscine de 15x6 chauffée, cette propriété à rafraîchir propose un confort de vie optimal. Le chauffage est au fioul et l'assainissement par fosse septique. Cette propriété unique offre un cadre exceptionnelle avec un potentiel à sa mesure. Devis à disposition pour travaux de rafraichissement.




















Classe énergie et classe climat
Conseillère indépendante en immobilier sur :
RUELLE SUR TOUVRE (16600) et alentours
EI - Agent commercial - 751 535 329 RSAC Angoulême