
Jardin
Terrasse
4 ch - Sur Auberville - Grands espaces - 3 salles de douche - Proche de tout mais au calme - Réalisée pour du quotidien en style traditionne
Maison neuve 107m²-Entre Houlgate et Villers S/Mer
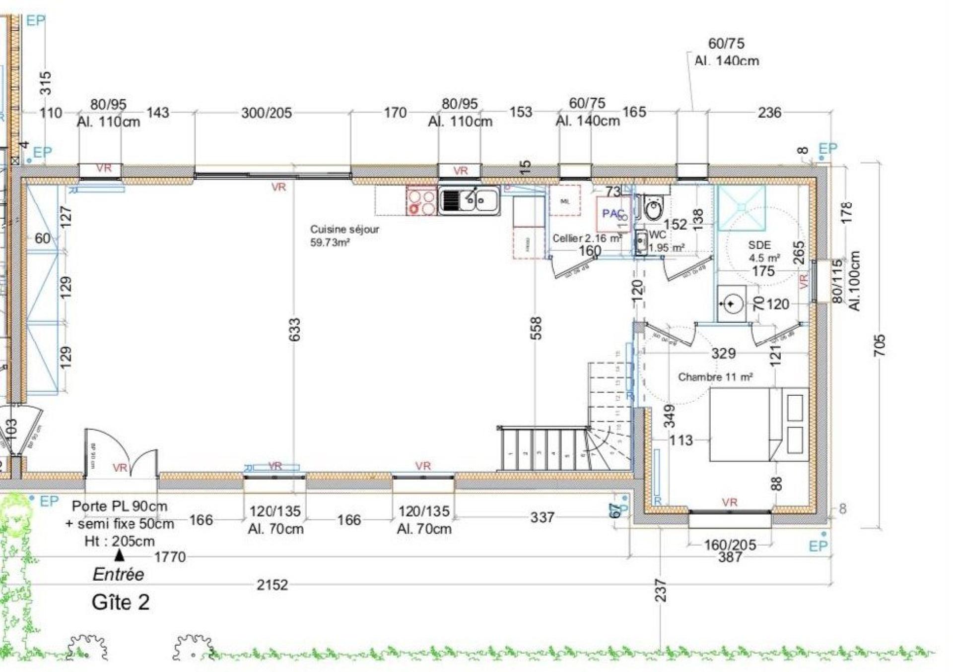
Bienvenue à Auberville , dans cette maison de 131m² sur un terrain de 1061 m², offrant un cadre de vie idéal entre mer et campagne. Bénéficiant d'une exposition Est-Ouest, elle dispose d'un grand jardin avec terrasses des deux côtés. A pied, vous pourrez aller faire vos courses au nouveau petit super marché du rond point en face le bowling, la pizzeria, la pompe à essence, le garage automobile. Villers-Sur-Mer et Houlgate à quelques minutes vous offrant le choix des plages. L'arrêt du Bus 111 permettra d'y accéder facilement depuis la gare de Deauville ou de Caen. En extérieur, cette propriété comprend deux places de parking. La résidence est sécurisée (portail avec code sur application smartphone) Au rez-de-chaussée, vous trouverez une vaste pièce de vie comprenant l'entrée, le séjour/salle à manger/cuisine, un WC séparé ainsi qu'une pièce technique (pompe à chaleur air/eau Atlantic/Fujitsu). Une suite avec salle de douche à l'italienne. À l'étage, 3 chambres dont une suite parentale avec sa salle de douche, 1 WC séparé et une salle de douche commune.














Classe énergie et classe climat
Conseiller indépendant en immobilier sur :
HOULGATE (14510) et alentours
EI - Agent commercial - 387 573 496 RSAC LISIEUX