
Terrasse
Entre Houlgate et Villers S/Mer à quelques minutes des plages - Au calme - Résidence sécurisée - Possibilité d'acheter la maison mitoyenne
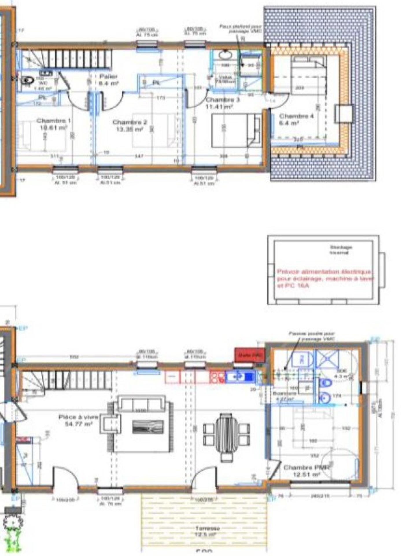
Maison 123m² - 5 CH - Suite au RDC - Jardin 884m²
Dans un style traditionnel, cette maison récente, jamais habitée, permettrait si besoin, un regroupement familiale en acquérant la maison mitoyenne, soit une surface totale de 231m²; Et les portes de jonction sont déjà faites. Le projet était de mettre la maison en location mais la vie en a décidé autrement et la voilà disponible à la vente. (VIDÉO disponible sur le site de SAFTI - "Trouvez un conseiller", tapez, "Richard RICOUL", puis dans l'annonce vous trouverez en haut à gauche un onglet "VIDÉO") Sinon, au RDC, une vaste pièce de vie, le salon salle à manger, la cuisine, une buanderie. Une suite parentale avec sa grande salle de douche à l'italienne. Un WC séparé. A l'étage, 3 chambres dont une avec bureau ou dressing ou 1 autre chambre. Une salle de douche, un WC séparé. Cette belle maison bénéficie d' un ancien four à pain rénovée en son jardin derrière. Pratique pour stocker les vélos et matériel de jardin. Le terrain est fraichement borné : 884m². A pied, vous pourrez aller faire vos courses au nouveau petit super marché du rond point en face le bowling. Huisseries : Double vitrage PVC Type de chauffage : électrique, PAC air








Classe énergie et classe climat
Conseiller indépendant en immobilier sur :
HOULGATE (14510) et alentours
EI - Agent commercial - 387 573 496 RSAC LISIEUX