
Maison - Villa

Climatisation
Terrasse
neuve
Magnifique Villa T6
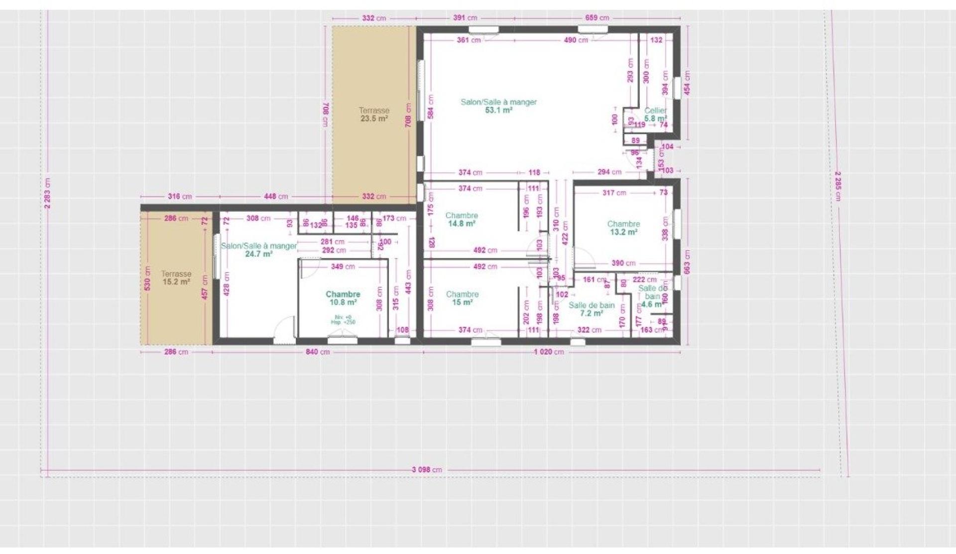
Villa T4 de 110m2 + un T2 de 40 m2 situé à Aleria dans un lotissement récent proche de toute commodités ainsi que de la plage. Elle est sur un terrain de 746m2 bénéficiant d'une exposition Sud/Est. Elle est composé : D'une maison principale T4, d'un salon salle à mangé, d'une cuisine ouverte, d'un cellier, de 3 chambres avec salle d'eau privative plus une salle de bain. Elle bénéficie d'une terrasse de 23m2. Et d'un appartement T2, d'un salon cuisine ,d'une chambre et d'une salle d'eau avec Wc. Il dispose d'une terrasse 15m2. Construite en 2025 cette maison offre un cadre de vie confortable et fonctionnel pour ses futurs occupants. Les pièces de vie son lumineuse et climatisé ,les salles d'eau son équipées de douche à l'italienne avec meuble miroir et vasque, sol travertin dans les salle d'eau et terrasse ,carrelage imitation bois pour les chambres, menuiseries intérieur imitation chêne.Possibilité de construire jusqu'a 150m2 supplémentaire.













Conseillère indépendante en immobilier sur :
GHISONACCIA (20240) et alentours
EI - Agent commercial - 979 757 192 RSAC Bastia