Immeuble de prestige2 700 000 €
Nouveauté
Ref 35236

Immeuble de prestige de 960m² à Sant Pere de Ribes

2 700 000 €Sant Pere de Ribes(08810)
2439 m²
terrain
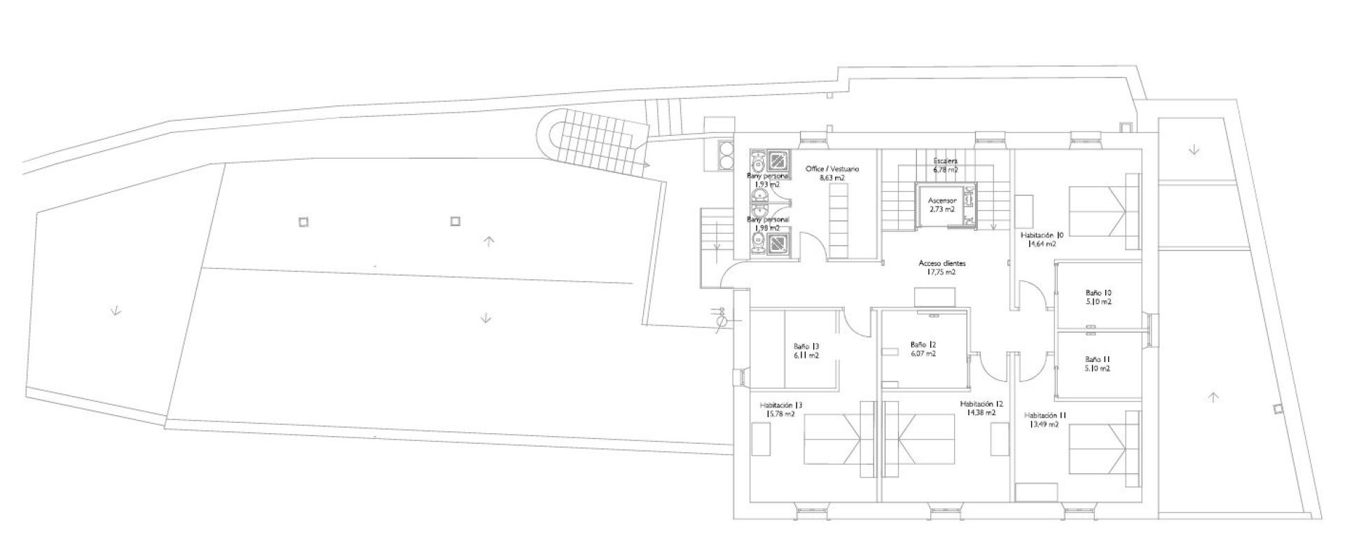
960 m²
surface habitable
14
chambres
PB
Paula BOTERO
Contacter

Ses atouts

Ascenseur

Climatisation

Jardin

Piscine

Terrasse

Visite guidée

Inversión en una auténtica MASÍA con encanto y gran proyección

Esta espectacular masía combina la serenidad del entorno natural con el confort moderno, ofreciendo un refugio perfecto tanto para uso privado como para un proyecto turístico exclusivo.
A tan solo unos minutos de Sitges y sus playas, la propiedad goza de una ubicación estratégica que atrae a quienes buscan paz y naturaleza, sin renunciar a la vibrante vida cultural y costera de la zona.
Con un extenso terreno y edificaciones en excelente estado, la masía abre un abanico de posibilidades: desde convertirla en un hotel boutique de ensueño hasta disfrutarla como residencia privada o como una combinación de ambas.
La propiedad dispone de habitaciones con encanto, espacios comunes flexibles y zonas exteriores que invitan a la desconexión. Su diseño fusiona lo rústico con la elegancia contemporánea, generando un ambiente acogedor para escapadas románticas, reuniones familiares o eventos corporativos exclusivos.
Además, incorpora sistemas de eficiencia energética y recursos propios, reflejando un firme compromiso con la sostenibilidad y las tendencias del turismo responsable.
Invertir aquí significa asegurar una oportunidad única en un mercado turístico en constante crecimiento, con el valor añadido de un inmueble histórico que conserva toda su autenticidad.

!Tu próxima inversión ideal te espera... Llámame y vamos a verla juntos!

Caractéristiques

Généralités

Type
Immeuble de prestige
Surface habitable
960m²
Surface terrain
2439m²
Jardin
Oui
Etages
2
Année de construction
1881

Aménagement du bien

Chambres
14
Places de stationnement
25
Salles de bain
14
Ascenseur
Oui
Piscine
Oui
Terrasse
Oui
Climatisation
Oui

Autres

Accès handicapé
Oui
DPE
D

Informations additionnelles

PB

PaulaBOTERO

Conseillère indépendante en immobilier sur :
Sant Pere de Ribes (08810) et alentours

Je vous accompagne dans la concrétisation de votre projet immobilier :

Conformément à l’article L.223-2 du Code de la consommation, il est rappelé que le consommateur peut user de son droit à s’inscrire gratuitement sur la liste d’opposition au démarchage téléphonique sur le site www.bloctel.gouv.fr. Ce site est protégé avec reCAPTCHA et la politique de confidentialité et les conditions d'utilisations de Google s'appliquent.

Autres biens pouvant vous correspondre

Laissez-vous inspirer