
Ascenseur
Balcon
Terrasse
Appartement lumineux en étage élevé avec double orientation, balcon sur rue et grande terrasse avec vue dégagée sur le typique patio intérieur de l’Eixample
Charme moderniste de 1900 au cœur de Sant Antoni
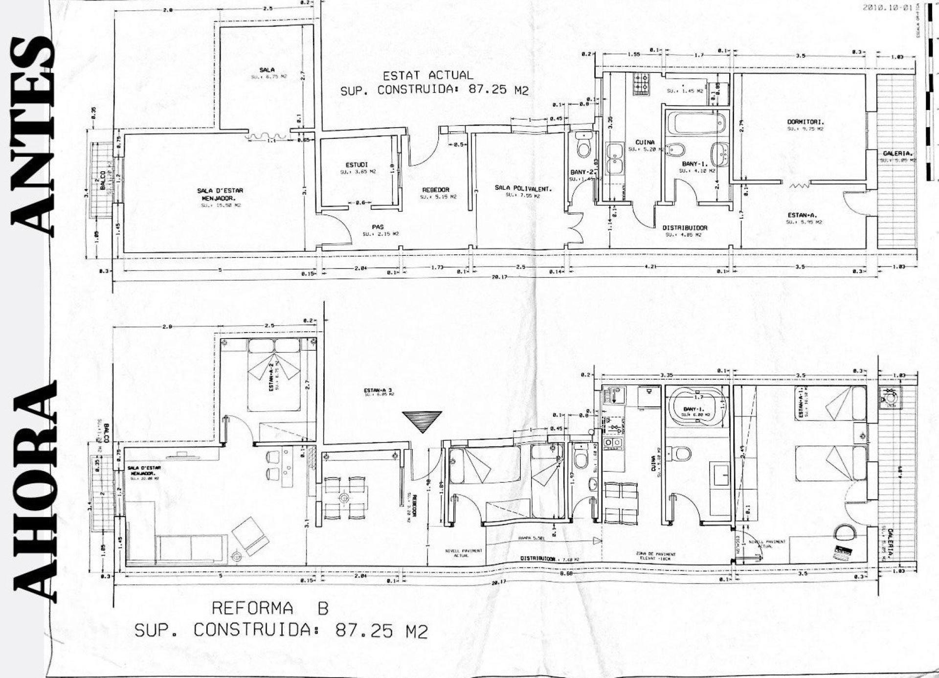
Modernisme, lumière et double orientation au cœur de Sant Antoni Nous vous présentons un véritable bijou architectural, situé dans un immeuble moderniste de 1900 avec ascenseur, sur la célèbre rue Parlament, l’une des plus prisées de l’Eixample Gauche, à quelques pas du marché de Sant Antoni. Situé au quatrième étage réel, avec seulement deux appartements par palier, ce logement extérieur d’environ 100 m² construits marie parfaitement le charme du modernisme barcelonais au confort contemporain. Il offre de hauts plafonds avec poutres apparentes, sols en bois et une luminosité exceptionnelle dans toutes les pièces. Le bien dispose de deux unités de climatisation, situées dans le salon et la chambre principale. Une distribution fonctionnelle et pleine de caractère : Grand salon-salle à manger avec accès direct à un balcon donnant sur la rue Parlament Terrasse arrière orientée vers le typique patio intérieur de l’Eixample, parfaite pour profiter du calme Trois chambres (deux doubles et une simple), anciennement quatre. L’une d’elles dispose de sa terrasse privée orientée sud-ouest Cuisine indépendante entièrement équipée Salle de bain complète + WC invité Accès à une terrasse commune sur le toit Le bien a été rénové avec soin, en préservant des éléments d’origine qui lui confèrent authenticité et charme, comme les moulures, boiseries anciennes et détails décoratifs modernistes. Une localisation privilégiée : Entouré de commerces de proximité, cafés de caractère, espaces culturels et bénéficiant d’une excellente connexion aux transports en commun (métros L2 et L3 à quelques minutes). À proximité de la Plaça Espanya, du centre commercial Las Arenas, et avec un accès rapide à la gare de Sants et à l’aéroport. Une opportunité unique de vivre ou d’investir dans l’un des quartiers les plus authentiques et dynamiques de Barcelone. Ne laissez pas passer cette opportunité ! Contactez-nous et venez le visiter



























Conseillère indépendante en immobilier sur :
Barcelona (08013) et alentours